Ultima propieds

Prachtig gerenoveerd appartement met zeezicht in Nerja
Op slechts 10 minuten lopen van het populaire Burriana-strand en 20 minuten van het centrum van Nerja ligt dit volledig gerenoveerde appartement, gelegen in een rustige en kleinschalige urbanisatie met gemeenschappelijk zwembad. De urbanisatie bestaat uit slechts 9 woningen en beschikt over een gemeenschappelijk zwembad. Zwembad bereikbaar via lift en trappen.

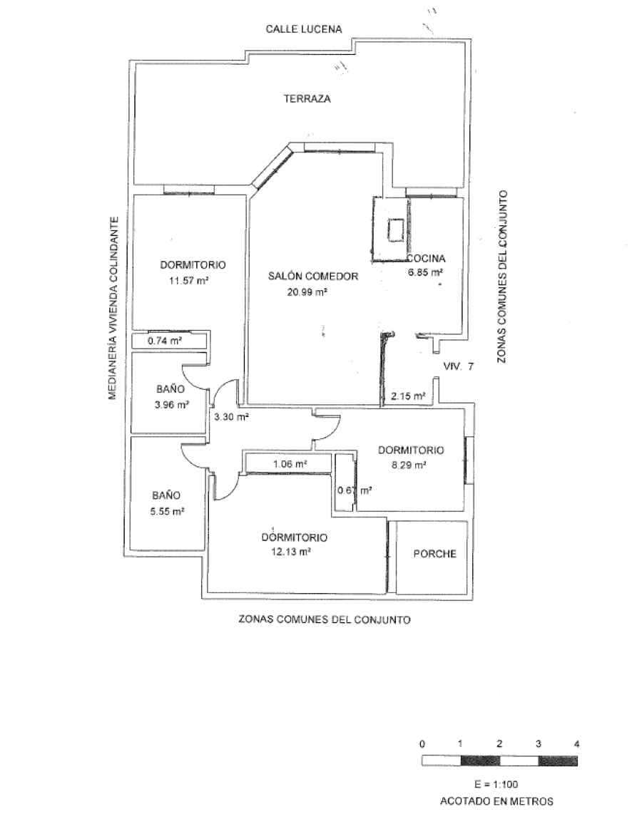
Het appartement bevindt zich op de eerste verdieping en is bereikbaar via een trap en ook via een lift. Bij binnenkomst komt u in een hal die toegang biedt tot de woonkamer. De ruime en lichte woonkamer beschikt een grote schuifpui die direct toegang geeft tot het ruime terras. De woonkamer sluit naadloos aan op de open, modern gerenoveerde keuken. De keuken is voorzien van een kookeiland met bargedeelte en krukken, en alle benodigde inbouwapparatuur, waaronder een vaatwasser, kookplaat met geintegreerde afzuiging, oven, wasmachine, koelkast en vriezer.

Via de schuifpui in de woonkamer bereikt u het ruime terras, waar u kunt genieten van een prachtig uitzicht op de zee, de bergen en het dorp Nerja. Dankzij de zuidwestelijke oriëntatie heeft u hier vrijwel de hele dag zon. Het terras is ruim en biedt plaats aan een grote eettafel en 2 relaxstoelen.

De woning beschikt over drie slaapkamers en twee badkamers. De hoofdslaapkamer heeft een en-suite badkamer met inloopdouche, hangtoilet en wastafelmeubel. Deze ruime slaapkamer heeft een grote inbouwkast en biedt directe toegang tot het terras. De tweede slaapkamer is zeer ruim, heeft een grote inbouwkast en beschikt over een eigen patio. Daarnaast is er een derde slaapkamer met ook een ruime inbouwkast. De royale familiebadkamer heeft een dubbele wastafel, hangtoilet en eveneens voorzien van een ruime inloopdouche.

Alle slaapkamers en de woonkamer zijn uitgerust met airconditioning (warm en koud). Het appartement is volledig gerenoveerd en verkeert in uitstekende staat.
Een instapklare woning die perfect geschikt is als permanente woning, vakantieverblijf of investering. (Vakantieverhuur is toegestaan).

Algemeen
  • 1ª verdieping
  • Lift
  • 1 woonkamer
  • 3 Slaapkamers
  • 2 Badkamers
  • 3 Ingebouwde kledingkast
  • 1 terras (28 m2)
  • Binnenplaats

Oppervlakken
  • Bebouwde: 89 m2
  • Nuttig: 77 m2

land
  • Bouwjaar: 2003
  • gerenoveerd

Uitrusting
  • Zwembad
  • Ingerichte keuken

485.000 €

  • m2 bebouwde: 5.449 €
  • I.B.I. 368 €/ jaar
  • gemeente 128 €/maand
CALIFICACIÓN ENERGÉTICA

Consumo energía
kW h / m2 año
Emisiones CO2
kg CO2 / m2 año
A
B
C
D
E 116 22
F
G

Calle Lucena.
29780, Nerja (Málaga)
Burriana

Situatie
  • Zuidwesten oriëntatie
  • Zeezicht


   Noemen

Gebruik van cookies

We gebruiken onze eigen cookies en cookies van derden om de ervaring op onze website te verbeteren en voor analytische doeleinden. Sommige zijn noodzakelijk voor de goede werking van de website, andere kunt u instellen of weigeren. U kunt meer informatie vinden op de Cookies beleid